





Aceasta proprietate a fost deja vanduta! Pentru oferte similare contactati agentul
Apartament confort sporit in Buna Ziua
Cluj-Napoca, Buna Ziua
227.500€ + TVA
Camere
3
Suprafata utila
87.51 mp
Suprafata construita
110 mp
Etaj
Etaj 5
Bai
2
An constructie
2024
- ID:P19211
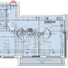
- Nr. camere:3
- Nr. dormitoare:2
- S. utila:87.51 mp
- S. balcoane:15.50 mp
- S. utila totala:103.01 mp
- S. construita:110.00 mp
- Comp.:Semidecomandat
- Confort:Lux
- Etaj:Etaj 5
- Nr. bucatarii:1
- Nr. bai:2
- Nr. balcoane:2
- Pret parcare:10.000€ + TVA
- An constructie:2024
- Structura:Caramida
- Tip imobil:Bloc
- Regim inaltime:P+6
- Orientare:Sud-Est
- Clasa energetica:B
Descriere
Koncept Imobiliare va ofera spre vanzare un apartament cu 3 camere, in cartierul Buna Ziua. Apartamentul are suprafata de 87,5 mp utili plus 2 balcoane ce insumeaza 15,5 mp, este situat la etajul 5 unui imobil nou cu 6 etaje, imobil ce face parte dintr-un ansamblu foarte frumos, construit dupa ultimele standarde, cu arhitectura moderna, peisagistica si sisteme de siguranta, amintim aici: videointerfon, supraveghere video, acces controlat. Apartamentul se vinde semifinisat, dispune de incalzire prin pardoseala Rehau, contorizare individuala cu citire la distanta la fiecare apartament, ferestre cu 3 foi de sticla, termosistem cladire de 15 cm, etc. Pentru confortul dumneavoastra, se poate achizitiona si un loc de parcare in garajul subteran la pretul de 10.000 euro+tva. Datorita locatiei foarte bune, retras de la strada principala, dar in acelasi timp avand acces foarte usor, a compartimentarii avantajoase, dar si a calitatii constructiei, acest apartament se recomanda atat pentru locuinta, cat si pentru investitie. Pentru detalii complete, pentru programarea unei vizionari sau pentru a afla oferta noastra completa, nu ezitati sa ne contactati telefonic, prin email sau direct la sediul agentiei noastre pe str. Aviator Badescu nr. 19, Cluj Napoca.
Citeste mai mult
Specificatii
Curent
Apa
Canalizare
Gaz
Acces internet
Fibra optica
Centrala imobil
Incalzire pardoseala
Izolatie Exterior
Ferestre PVC
Ferestre Termopan
Usa intrare Metal
Wc serviciu
Bucatarie Nemobilata
Bucatarie Neutilata
Apometre
Contor caldura
Contor gaz
Nemobilat
Videointerfon
Lift
Spatii agrement
Alin Trifan
0799 300 009
Esti interesat de aceasta proprietate ?